Unit E1

To find out the current status of this listing or to see photos and a virtual walkthrough, click here.

 

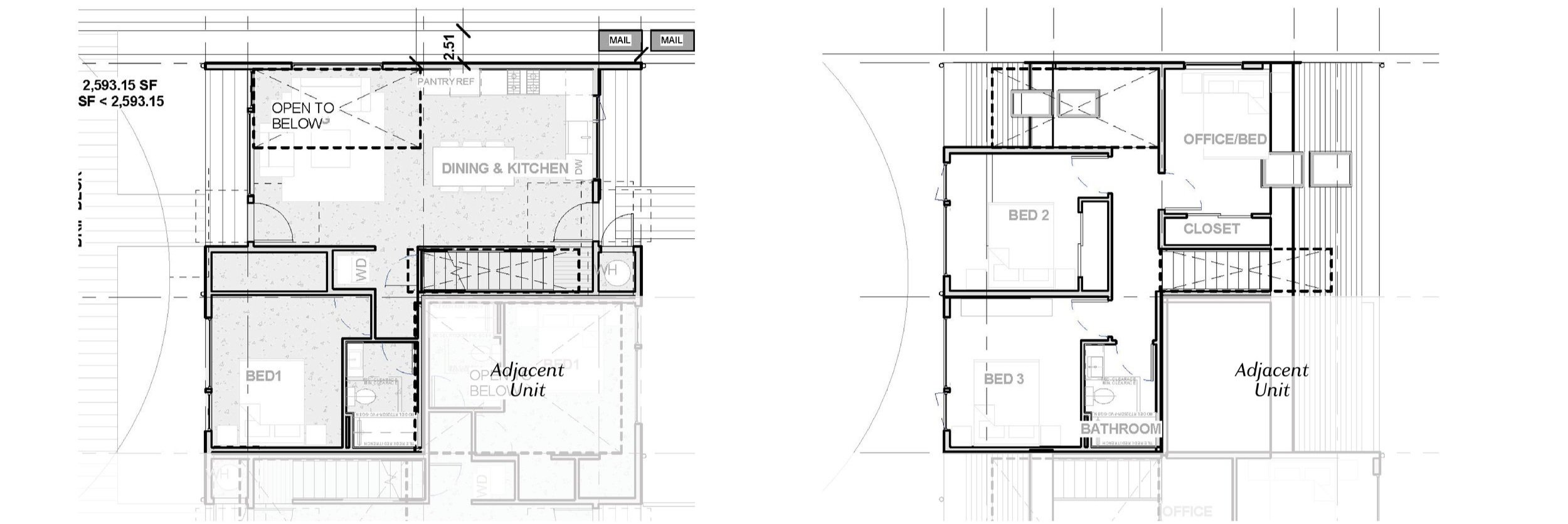
Basics

Approx. SQFT: 1,300 sqft

Bedroom(s): 4 Bedrooms

Bathrooms(s): 2 Full Baths

Status: Available

Dormers: 2 Second Floor Dormers

Placement: End Unit - East Building

Designation: Primary Unit

 

Other Features

L-shaped kitchen

Front & back covered porches

First floor livable (full bathroom & bedroom on first floor)

In-unit washer and dryer hookups

2 skylights (living & den)

Ample windows

 

Site Plan

 

Unit Plan

 
 
 

NOTE: all information and graphics subject to change throughout project development